[REZERWACJA] Jasne mieszkanie w doskonałej lokalizacji (dzielnica Pista) – Alessandria
- 57,000€
[REZERWACJA] Jasne mieszkanie w doskonałej lokalizacji (dzielnica Pista) – Alessandria
- 57,000€
Opis
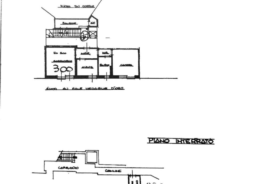
Oferujemy na sprzedaż jasne i przytulne mieszkanie położone na piątym piętrze w zadbanym budynku z windą, w jednej z najbardziej poszukiwanych części miasta – dzielnicy Pista.
Nieruchomość składa się z przestronnego salonu, oddzielnej, w pełni funkcjonalnej kuchni, sypialni małżeńskiej oraz łazienki z oknem. Dodatkowym atutem jest tarasik zlokalizowany na półpiętrze, stanowiący prywatną przestrzeń na świeżym powietrzu – idealną do relaksu lub przechowywania.
Do mieszkania przynależy również piwnica w przyziemiu budynku. Ogrzewanie jest półautonomiczne, co pozwala na kontrolę kosztów i większy komfort użytkowania.
To idealna propozycja dla singla, pary lub inwestora, dzięki dobremu układowi pomieszczeń, spokojnej lokalizacji i bliskości najważniejszych usług – sklepów, szkół, komunikacji miejskiej oraz terenów rekreacyjnych.
*Zdjęcia to wizualizacje poglądowe, mające charakter wyłącznie orientacyjny.*




Szczegóły
Zaktualizowano na 26 lutego, 2026 w 10:41 am-
Kod Oferty: LazVenAL25
-
Cena 57,000€
-
Powierzchnia nieruchomości 65 m
-
Sypialnia 1
-
Pokoje 2
-
Łazienka 1
-
Typ nieruchomości Apartament, Mieszkanie
-
Status nieruchomości REZERWACJA, Rynek Wtórny
Wyposażenie
Adres
Otwórz w Mapach Google-
Miasto: Alessandria
-
Region: Piemont
-
Kraj: Włochy
- Lazuroo















